1
Anzahl der Objekte: 1 | 1
Obj.: 1 | 1

2-Zimmerwohnung vermietet in 21077 Hamburg-Marmstorf zu verkaufen

Hauszugang Erdgeschosswohnung Hamburg
Hauszugang
195.000,- €
 
Blick in den Garten Erdgeschosswohnung Hamburg
Blick in den Garten
Zugang zu den Häusern Erdgeschosswohnung Hamburg
Zugang zu den Häusern
Treppenhaus Erdgeschosswohnung Hamburg
Treppenhaus
Blick von der Terrasse Erdgeschosswohnung Hamburg
Blick von der Terrasse
Kellergeschoss Erdgeschosswohnung Hamburg
Kellergeschoss
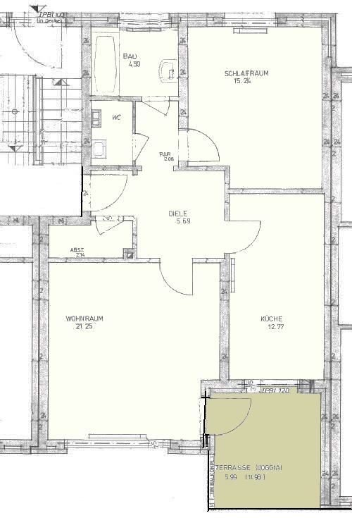
Grundriss Erdgeschosswohnung Hamburg
Grundriss

Objektart

Erdgeschosswohnung

Adresse

21077 Hamburg - Hamburg

Objektdaten

Objekt-Nr. A1659
Wohnfläche (ca.) 71 m²
Zimmer 2
Kaufpreis 195.000,- €

Informationen

Grundstücksfläche (ca.)
4.763 m²

Ausstattung

Unterkellert

Details

Anzahl Etagen
3
Bauweise
Massiv
Garage
Anzahl 1
Bodenbelag
Fliesen, Teppich
Erschließung
voll erschlossen
Provisionshinweis
Die Provision beträgt insgesamt 7,14 % inkl. der MwSt. Diese wird hälftig zwischen Verkäufer und Käufer geteilt.

Die Wohnung befindet sich im Erdgeschoss eines sehr gepflegten Mehrfamilienhauses Baujahr 1979. Das Haus liegt auf einem 4.763 m² großen Grundstück innerhalb einer Wohnanlage mit insgesamt 20 Eigentumswohnungen. Das Grundstück ist gärtnerisch gut gestaltet und im Randbereich mit Bäumen bewachsen. Die zur Wohnungseigentümergemeinschaft gehörenden Häuser liegen in ruhiger Lage, überwiegend umgeben von zwei- und dreigeschossigen Mehrfamilienhäusern auf großen begrünten Grundstücken sowie Reihenhäusern. Das Gebäude befindet sich in einem guten baulichen Zustand.

Die 2-Zimmerwohnung hat ca. 71 m² Wohnfläche und besteht aus 2 Zimmern, Küche, Bad, separatem WC, Flur und Abstellraum. Die große nach Süden gelegene Terrasse ist teilweise überdacht.

Von der zentral gelegenen Diele gelangen Sie in das große Wohnzimmer mit Zugang zu der Terrasse. Das Bad hat ein Fenster verfügt über eine Dusche und Waschtisch. Daneben gibt es ein separates WC. Im Keller gibt es einen weiteren Abstellraum.

Zusammen mit der Wohnung bieten wir einen Stellplatz in der auf der anderen Straßenseite gelegenen Garage zum Kauf an. Bei Erwerb dieses Stellplatzes ist der Kaufpreis mit 7.500,00 EUR in dem Gesamtkaufpreis von 195.000.00 EUR enthalten.

Die Wohnung ist seit dem 01.12.1987 vermietet. Die Mietzahlung beträgt seit dem 01.09.2023 monatlich für die Wohnung 605,63 EUR nettokalt und den Garagenstellplatz 57,50 EUR, zusammen monatlich 663,13 EUR. Hinzu kommen die vom Mieter zu tragenden Vorauszahlungen von monatlich 329,68 EUR, gesamt monatlich somit 992,91 EUR. Die monatlichen Vorauszahlungen auf Betriebs- und Heizkosten beinhalten auch die vom Mieter zu tragende Grundsteuer von derzeit jährlich 295,68 EUR (monatlich 24,64 EUR).

Mit Rücksicht auf den Mieter gibt es hier keine Bilder mit Innenansichten.

Die Wohnung ist in einem gepflegten Zustand. Die Bodenbeläge bestehen aus Teppichboden.

Die Küche ist modernisiert und mit hellen Bodenfliesen und Fliesenschild im Sichtbereich der Einbauküche versehen. Die komfortable Einbauküche ist im Besitz des Mieters.

Das Bad wurde 2011 renoviert, hat ein Fenster und verfügt über Dusche, Waschtisch und Handtuchtrockner. Die Wände und der Fußboden sind gefliest.

Der Ernst-Bergeest-Weg befindet sich in Hamburg-Harburg im Stadtteil Marmstorf. In unmittelbarer Nähe zum Harburger Stadtpark und den Ausläufern der Harburger Berge bietet die Gegend viel Grün und Naherholungsmöglichkeiten.

Direkt vor der Haustür befindet sich eine Bushaltestelle. In weniger als 15 Minuten erreichen Sie den Bahnhof Hamburg-Harburg. Von dort besteht über die S-Bahn Anschluss an die Hamburger Innenstadt. In wenigen Autominuten erreichen Sie die die B75 sowie die Autobahnen A7 und A1.

Einkaufsmöglichkeiten sowie Ärzte, Apotheke und Schulen befinden sich im näheren Umfeld zum Objekt.

Bei dem Grundstück handelt es sich um ein Erbbaurecht mit einer Laufzeit von 99 Jahren seit dem 01.01.1979. Der Verkauf dieser Wohnung und auch des Stellplatzes in der Garage erfolgt unter Übernahme des Erbbaurechts. Der Erbpachtzins beträgt aktuell für die Wohnung 118,45 EUR monatlich, für den Stellplatz in der Garage 34,07 EUR monatlich. Weitere Erläuterungen zum Erbbaurecht erhalten Sie auf Nachfrage.

Die Wohnung ist vermietet und wird mit dem bestehenden Mietvertrag verkauft. Auch der Stellplatz in der Garage ist vermietet.

Der auf die Wohnung entfallende Anteil der Instandhaltungsrücklage per 31.12.2023 beträgt 3.163,31 EUR, für das gesamte Haus 76.705,47 EUR.

Der auf den Garagenstellplatz entfallende Anteil der Instandhaltungsrücklage per 31.12.2023 beträgt 2.213,26 EUR, für das gesamte Haus. 48.691,72 EUR.

Aufgrund des aktuellen Wirtschaftsplans 2025 betragen die monatlichen Hausgeld-Vorauszahlungen für die Wohnung 629,90 EUR.

Aufgrund des aktuellen Wirtschaftsplans 2025 betragen die monatlichen Hausgeld-Vorauszahlungen für den Garagenstellplatz 55,44 EUR.

Wenn Sie eine Besichtigung der Wohnung wünschen, lassen Sie uns dies gern wissen.

Neben dem Kaufpreis zahlen Sie als Erwerber alle mit dem Verkauf verbundenen Kosten wie die Notar- und Gerichtskosten sowie die Grunderwerbsteuer in Höhe von derzeit 5,5 % bei Immobilienerwerb in Hamburg.

Die Provision beträgt insgesamt 7,14 % inkl. der MwSt. Diese wird hälftig zwischen Verkäufer und Käufer geteilt. Im Falle des Abschlusses eines Kaufvertrages berechnen wir dem Käufer eine Maklerprovision von 3,57 % inkl. der MwSt.

Alle Angaben erfolgen aufgrund von Daten, die uns von dem Verkäufer zur Verfügung gestellt wurden. Eine Haftung für Richtigkeit und/oder Vollständigkeit wird von uns nicht übernommen. Irrtum und Zwischenverkauf bleiben vorbehalten.

Möchten Sie Ihre Immobilie verkaufen, sprechen Sie uns gern an. Professionelle Maklerleistung und vertrauensvolle Zusammenarbeit ist das, was unsere Kunden an uns schätzen.

Ansprechpartner

Herr Helmar Lux
Telefon: +49 40 458437
Telefax: +49 40 41498941
info@senator-consult.de

Energieausweis (Verbrauchsausweis)

Energieausweis-Skala bis 790px
Energieausweis Positions Pfeil bis 790px 170 kWh / (m²*a) Energieverbrauchskennwert
Energieausweis-Skala bis 623px
Energieausweis Positions Pfeil bis 623px 170 kWh / (m²*a) Energieverbrauchskennwert
Energieausweis-Skala bis 768px
Energieausweis Positions Pfeil bis 768px 170 kWh / (m²*a) Energieverbrauchskennwert
Energieausweis-Skala bis 481px
Energieausweis Positions Pfeil bis 481px
170 kWh / (m²*a) Energieverbrauchskennwert
Energieausweis-Skala bis 320px
Energieausweis Positions Pfeil bis 320px
170 kWh / (m²*a) Energieverbrauchskennwert

Weitere Informationen

Wesentlicher EnergieträgerGas
Energieausweis Ausstelldatum2018-08-25
Energieausweis gültig bis25.08.2028
Energieausweis Jahrgangab dem 1.5.2014
Energieverbrauch für Warmwasserenthalten
Energieausweis WerteklasseF
Energieausweis Baujahr2004
Energieausweis GebäudeartWohngebäude
BefeuerungGas

Ich bin damit einverstanden, dass mir Karten von Google angezeigt werden. Es gelten die Datenschutzbedingungen von Google (https://policies.google.com/privacy).

Ich bin einverstanden

Objektanfrage

Sie haben noch Fragen zu dem Angebot oder wollen einen Besichtigungstermin vereinbaren, dann füllen Sie einfach das untenstehende Formular vollständig aus und wir setzen uns schnellstmöglich mit Ihnen in Verbindung.
* Pflichtfelder